Skip to site navigation Skip to main content
main content
Sold on 19 Sep 2025

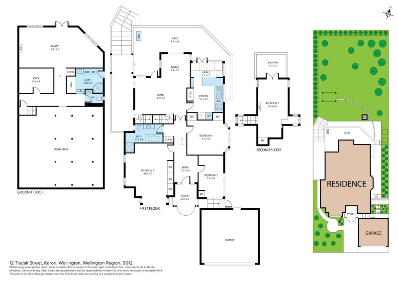
12 Tisdall Street, Karori, Wellington

SOLD: $1,170,000
  • 5 Beds
  • 2 Baths
  • 2 Parks

Property details

Freehold
218m² more or less
683m² more or less
5 Bedrooms
2 Bathrooms
2 Garage parking
Track home card illustration

Stay updated on this property!

Receive updates on value estimates and be the first to know if it goes on sale.

HomesEstimate

Updated: 16 Apr 2026

$1.15M - $1.3M

What is the HomesEstimate?

RentEstimate

Updated: 02 Apr 2026

$780 - $1,030 /week

Rental yield

3.9%

What is rental yield?

Sale history timeline

Local Schools

  • IN ZONE

    Donald Street

    622 m

    Full Primary (Primary & Intermediate), State, 612 enrolled


  • IN ZONE

    Taranaki Street

    3.4 km

    Secondary (Year 9-13) (Secondary), State, 1679 enrolled


  • IN ZONE

    18 Pipitea Street

    3.9 km

    Secondary (Year 9-13) (Secondary), State, 1436 enrolled


While we've done our best to correctly list schools in this location, school zone information may not be exact, so please double check with the school.

Thinking of selling?Determine your property's value with an appraisal
We are upgrading some of our systems
Learn more