Skip to site navigation Skip to main content
main content
Estimate

4 Tai Paku Paku Road, Karaka Bays, Wellington

HomesEstimate: $2.16M - $2.46M
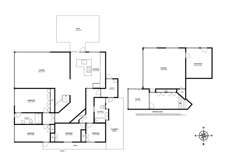
  • 4 Beds
  • 3 Baths
  • 3 Parks

Property details

Freehold
270m² more or less
645m² more or less
4 Bedrooms
3 Bathrooms
4 Garage parking
Track home card illustration

Stay updated on this property!

Receive updates on value estimates and be the first to know if it goes on sale.

HomesEstimate

Updated: 14 May 2026

$2.16M - $2.46M

What is the HomesEstimate?

RentEstimate

Updated: 05 Mar 2018

$1,050 - $1,260 /week

Rental yield

2.6%

What is rental yield?

Sale history timeline

Local Schools

  • IN ZONE

    168 Seatoun Heights Road

    730 m

    Contributing (Primary), State, 104 enrolled


  • IN ZONE

    14 Kemp Street

    2.9 km

    Intermediate (Intermediate), State, 349 enrolled


  • IN ZONE

    Austin Street

    3.8 km

    Secondary (Year 9-13) (Secondary), State, 1016 enrolled


While we've done our best to correctly list schools in this location, school zone information may not be exact, so please double check with the school.

Thinking of selling?Determine your property's value with an appraisal
We are upgrading some of our systems
Learn more