Skip to site navigation Skip to main content
main content
Estimate

3A Chancellor Way, Crofton Downs, Wellington

HomesEstimate: $560K - $630K
  • 2 Beds
  • 1 Bath
  • 2 Parks

Property details

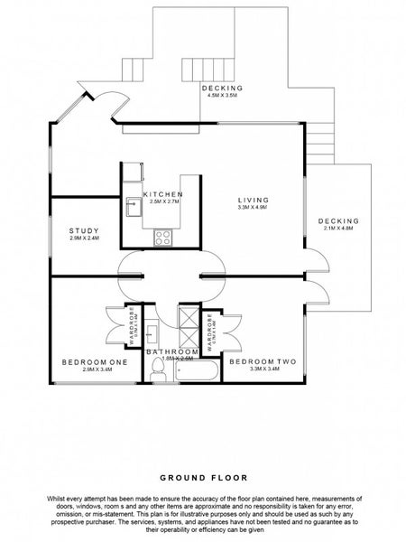
Cross Lease
73m² more or less
2 Bedrooms
1 Bathroom
1 Off-street parking
Yes
Track home card illustration

Stay updated on this property!

Receive updates on value estimates and be the first to know if it goes on sale.

HomesEstimate

Updated: 16 Apr 2026

$560K - $630K

What is the HomesEstimate?

RentEstimate

Updated: 02 Apr 2026

$480 - $630 /week

Rental yield

4.9%

What is rental yield?

Sale history timeline

Local Schools

  • IN ZONE

    21 Chartwell Drive

    319 m

    Contributing (Primary), State, 156 enrolled


  • IN ZONE

    18 Pipitea Street

    2.2 km

    Secondary (Year 9-13) (Secondary), State, 1436 enrolled


  • IN ZONE

    Burma Road

    4.5 km

    Secondary (Year 9-13) (Secondary), State, 1284 enrolled


While we've done our best to correctly list schools in this location, school zone information may not be exact, so please double check with the school.

Thinking of selling?Determine your property's value with an appraisal
We are upgrading some of our systems
Learn more