Skip to site navigation Skip to main content
main content
  1. Home
  2. Property
  3. Sold
  4. Tauranga
  5. Brookfield
  6. 16b Highfield Crescent, Brookfield, Tauranga
Estimate

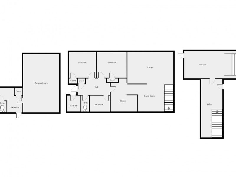
16B Highfield Crescent, Brookfield, Tauranga

HomesEstimate: $650K - $720K
  • 3 Beds
  • 2 Baths
  • 4 Parks
Track home card illustration

Stay updated on this property!

Receive updates on value estimates and be the first to know if it goes on sale.

HomesEstimate

Updated: 18 Sept 2025

$650K - $720K

What is the HomesEstimate?

RentEstimate

Updated: 02 Jul 2025

$460 - $590 /week

Rental yield

4.0%

What is rental yield?

Sale history timeline

Local Schools

  • IN ZONE

    236 Otumoetai Road

    522 m

    Contributing (Primary), State, 526 enrolled


  • IN ZONE

    105 Windsor Road

    945 m

    Secondary (Year 9-13) (Secondary), State, 2016 enrolled


  • IN ZONE

    20 Princess Road

    1.1 km

    Contributing (Primary), State, 305 enrolled


While we've done our best to correctly list schools in this location, school zone information may not be exact, so please double check with the school.

Thinking of selling?Determine your property's value with an appraisal
We are upgrading some of our systems
Learn more