Skip to site navigation Skip to main content
main content
  1. Home
  2. Property
  3. Sold
  4. Christchurch
  5. Mount Pleasant
  6. 285 Cannon Hill Crescent, Mount Pleasant, Christchurch
Estimate

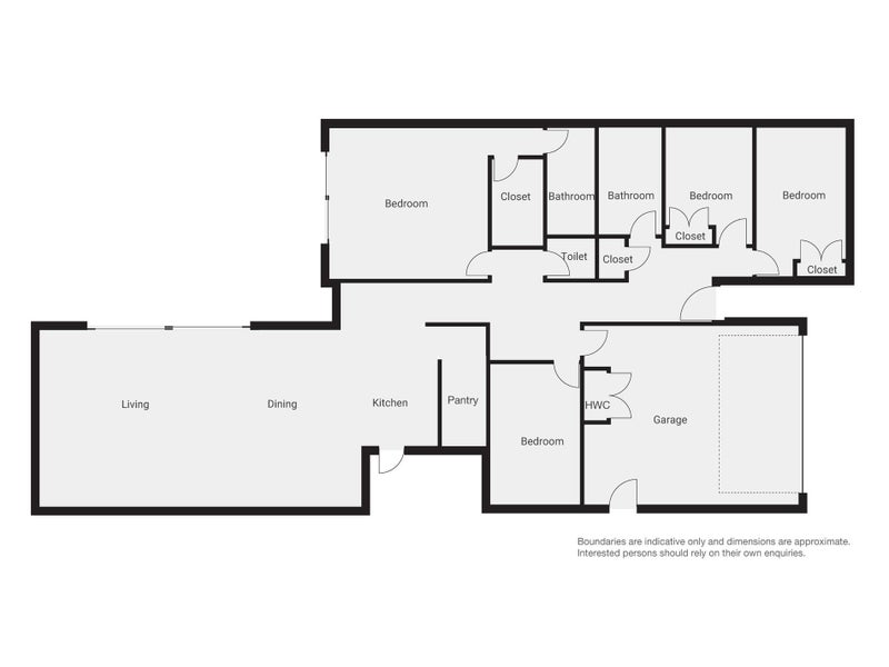
285 Cannon Hill Crescent, Mount Pleasant, Christchurch

HomesEstimate: $1.74M - $1.98M
  • 4 Beds
  • 2 Baths
  • 2 Parks

Property details

Freehold
248m² more or less
728m² more or less
4 Bedrooms
2 Bathrooms
2 Garage parking
Track home card illustration

Stay updated on this property!

Receive updates on value estimates and be the first to know if it goes on sale.

HomesEstimate

Updated: 22 Jan 2026

$1.74M - $1.98M

What is the HomesEstimate?

RentEstimate

Not yet available

Rental yield

What is rental yield?

Sale history timeline

Local Schools




While we've done our best to correctly list schools in this location, school zone information may not be exact, so please double check with the school.

Thinking of selling?Determine your property's value with an appraisal
We are upgrading some of our systems
Learn more