Skip to site navigation Skip to main content
main content
  1. Home
  2. Property
  3. Sold
  4. Auckland
  5. Saint Marys Bay
  6. 44d Shelly Beach Road, Saint Marys Bay, Auckland
Sold on 08 Aug 2025

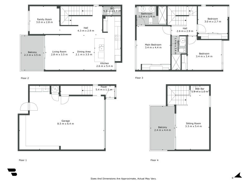
44D Shelly Beach Road, Saint Marys Bay, Auckland

SOLD: $2,400,000
  • 3 Beds
  • 2 Baths
  • 2 Parks

Property details

Freehold
208m² more or less
118m² more or less
2 Garage parking
2 Off-street parking
Yes
Track home card illustration

Stay updated on this property!

Receive updates on value estimates and be the first to know if it goes on sale.

HomesEstimate

Updated: 22 Jan 2026

$2.25M - $2.53M

What is the HomesEstimate?

RentEstimate

Updated: 02 Jan 2026

$1,200 - $1,420 /week

Rental yield

2.9%

What is rental yield?

Sale history timeline

Local Schools




While we've done our best to correctly list schools in this location, school zone information may not be exact, so please double check with the school.

Thinking of selling?Determine your property's value with an appraisal
We are upgrading some of our systems
Learn more