Skip to site navigation Skip to main content
main content
  1. Home
  2. Property
  3. Sold
  4. Auckland
  5. Remuera
  6. 34d Arney Crescent, Remuera, Auckland
Estimate

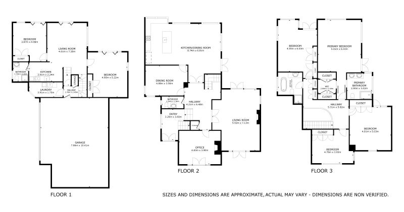
34D Arney Crescent, Remuera, Auckland

HomesEstimate: $6.55M - $7.34M
  • 6 Beds
  • 3 Baths
  • 3 Parks
Track home card illustration

Stay updated on this property!

Receive updates on value estimates and be the first to know if it goes on sale.

HomesEstimate

Updated: 18 Sept 2025

$6.55M - $7.34M

What is the HomesEstimate?

RentEstimate

Not yet available

Rental yield

What is rental yield?

Sale history timeline

Local Schools

  • IN ZONE

    282 Victoria Avenue

    1 km

    Contributing (Primary), State, 406 enrolled


  • IN ZONE

    237 Victoria Avenue

    1.1 km

    Secondary (Year 7-13) (Intermediate & Secondary), State : Integrated, 1505 enrolled


  • IN ZONE

    Silver Road

    1.3 km

    Secondary (Year 9-13) (Secondary), State, 2295 enrolled


While we've done our best to correctly list schools in this location, school zone information may not be exact, so please double check with the school.

Thinking of selling?Determine your property's value with an appraisal
We are upgrading some of our systems
Learn more