Skip to site navigation Skip to main content
main content
  1. Home
  2. Property
  3. Sold
  4. Auckland
  5. Ponsonby
  6. 53 John Street, Ponsonby, Auckland
Estimate

53 John Street, Ponsonby, Auckland

HomesEstimate: $3.25M - $3.64M
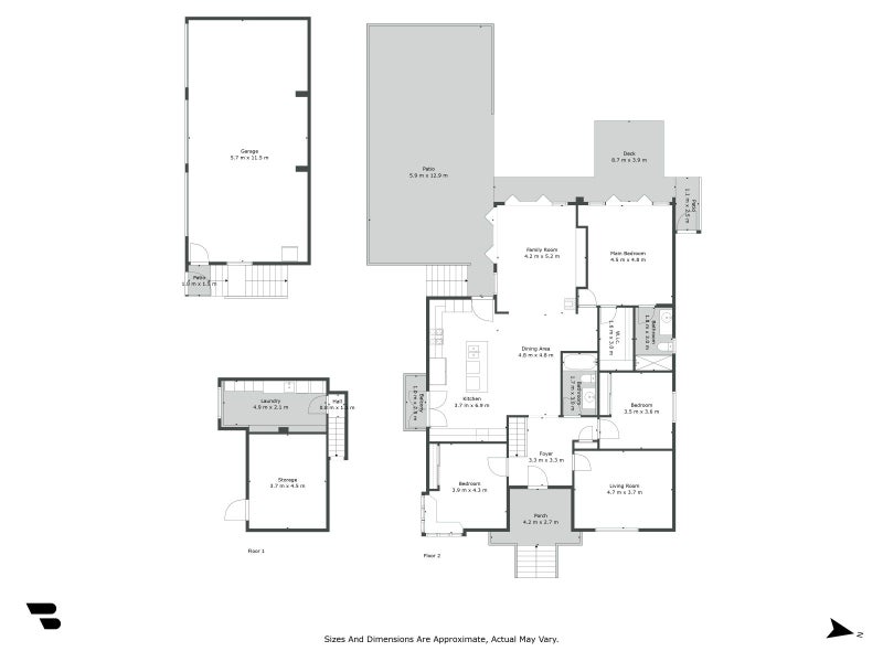
  • 3 Beds
  • 2 Baths
  • 3 Parks

Property details

Freehold
158m² more or less
419m² more or less
3 Bedrooms
2 Bathrooms
3 Garage parking
Track home card illustration

Stay updated on this property!

Receive updates on value estimates and be the first to know if it goes on sale.

HomesEstimate

Updated: 22 Jan 2026

$3.25M - $3.64M

What is the HomesEstimate?

RentEstimate

Updated: 02 Feb 2025

$1,320 - $1,590 /week

Rental yield

2.2%

What is rental yield?

Sale history timeline

Local Schools




While we've done our best to correctly list schools in this location, school zone information may not be exact, so please double check with the school.

Thinking of selling?Determine your property's value with an appraisal
We are upgrading some of our systems
Learn more