Skip to site navigation Skip to main content
main content
Estimate

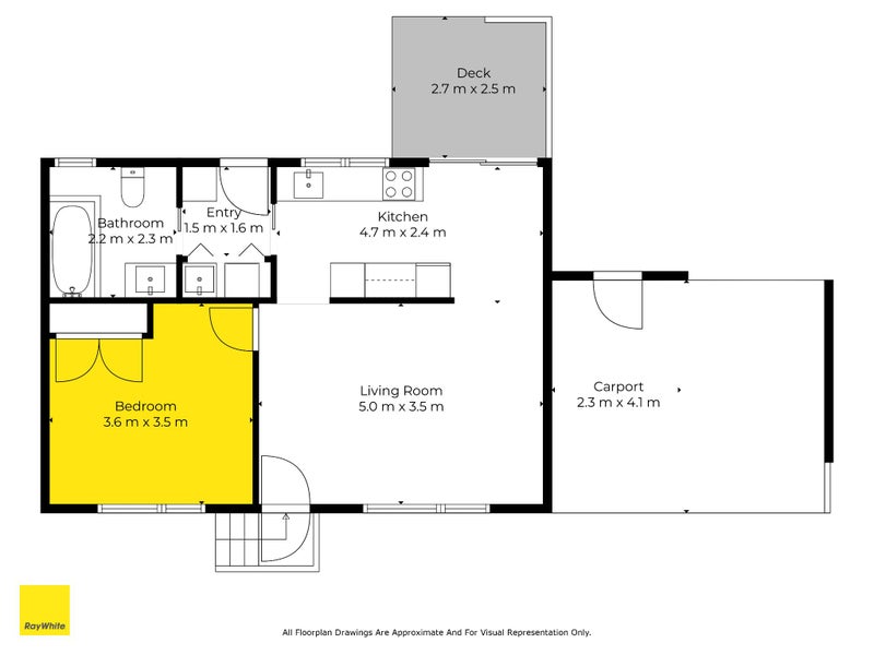
5/3 Willerton Avenue, New Lynn, Auckland

HomesEstimate: $395K - $445K
  • 1 Bed
  • 1 Bath

Property details

Cross Lease
60m² more or less
1 Bedroom
1 Bathroom
1 Garage parking
1 Off-street parking
Track home card illustration

Stay updated on this property!

Receive updates on value estimates and be the first to know if it goes on sale.

HomesEstimate

Updated: 14 May 2026

$395K - $445K

What is the HomesEstimate?

RentEstimate

Updated: 02 May 2026

$420 - $490 /week

Rental yield

5.6%

What is rental yield?

Sale history timeline

Local Schools

  • IN ZONE

    9 Croydon Road

    323 m

    Contributing (Primary), State, 340 enrolled


  • IN ZONE

    Great North Road

    997 m

    Secondary (Year 9-13) (Secondary), State, 584 enrolled


  • IN ZONE

    143-161 Godley Road

    1.7 km

    Secondary (Year 9-13) (Secondary), State, 1849 enrolled


While we've done our best to correctly list schools in this location, school zone information may not be exact, so please double check with the school.

Thinking of selling?Determine your property's value with an appraisal
We are upgrading some of our systems
Learn more