Skip to site navigation Skip to main content
main content
  1. Home
  2. Property
  3. Sold
  4. Auckland
  5. New Lynn
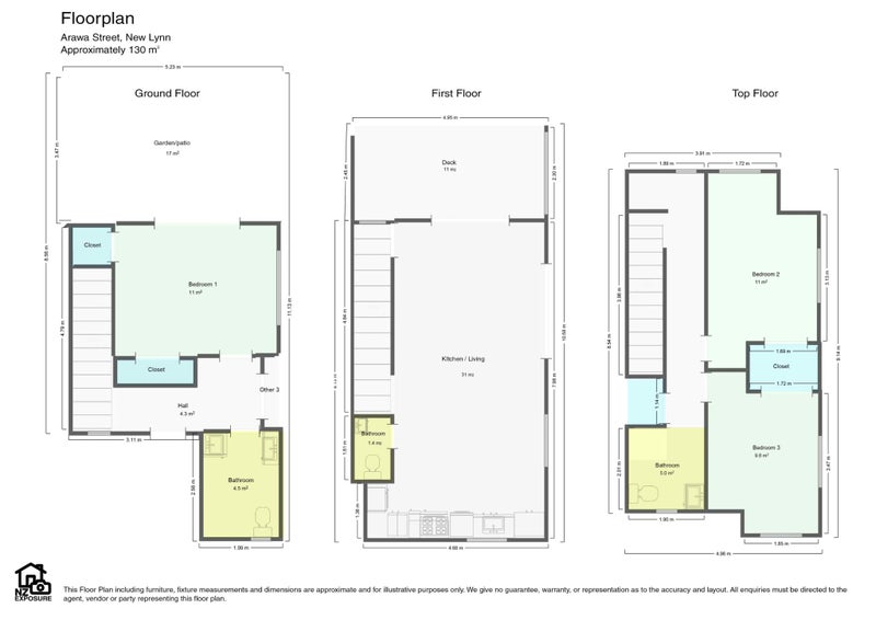
  6. 1-13 Arawa Street, New Lynn, Auckland
Sold on 22 Apr 2025

1/13 Arawa Street, New Lynn, Auckland

SOLD: $825,000
  • 3 Beds
  • 2 Baths
  • 1 Park
Track home card illustration

Stay updated on this property!

Receive updates on value estimates and be the first to know if it goes on sale.

HomesEstimate

Updated: 18 Sept 2025

$780K - $875K

What is the HomesEstimate?

RentEstimate

Updated: 02 Jul 2025

$650 - $730 /week

Rental yield

4.3%

What is rental yield?

Sale history timeline

Local Schools

  • IN ZONE

    9 Croydon Road

    956 m

    Contributing (Primary), State, 340 enrolled


  • IN ZONE

    Great North Road

    1 km

    Secondary (Year 9-13) (Secondary), State, 584 enrolled


  • IN ZONE

    Archibald Road

    1.5 km

    Secondary (Year 9-13) (Secondary), State, 809 enrolled


While we've done our best to correctly list schools in this location, school zone information may not be exact, so please double check with the school.

Thinking of selling?Determine your property's value with an appraisal
We are upgrading some of our systems
Learn more