Skip to site navigation Skip to main content
main content
  1. Home
  2. Property
  3. Sold
  4. Auckland
  5. Herne Bay
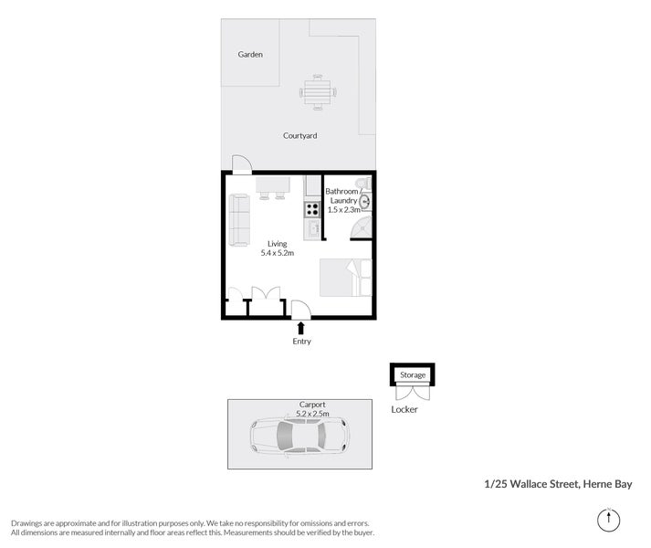
  6. 1-25 Wallace Street, Herne Bay, Auckland
Estimate

1/25 Wallace Street, Herne Bay, Auckland

HomesEstimate: $445K - $500K
  • 1 Bed
  • 1 Bath
Track home card illustration

Stay updated on this property!

Receive updates on value estimates and be the first to know if it goes on sale.

HomesEstimate

Updated: 18 Sept 2025

$445K - $500K

What is the HomesEstimate?

RentEstimate

Updated: 02 Jul 2025

$410 - $500 /week

Rental yield

5.0%

What is rental yield?

Sale history timeline

Local Schools

  • IN ZONE

    50 Clarence Street

    712 m

    Intermediate (Intermediate), State, 541 enrolled


  • IN ZONE

    Howe Street

    2.3 km

    Secondary (Year 9-13) (Secondary), State, 1167 enrolled


  • IN ZONE

    Motions Road

    2.5 km

    Secondary (Year 9-13) (Secondary), State, 1827 enrolled


While we've done our best to correctly list schools in this location, school zone information may not be exact, so please double check with the school.

Thinking of selling?Determine your property's value with an appraisal
We are upgrading some of our systems
Learn more