Skip to site navigation Skip to main content
main content
Estimate

6A Sefton Avenue, Grey Lynn, Auckland

HomesEstimate: $1.4M - $1.56M
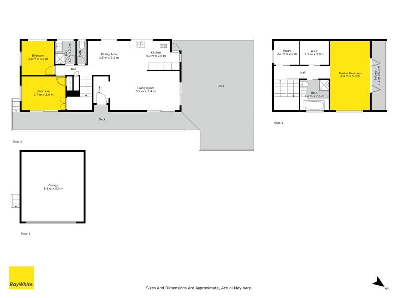
  • 3 Beds
  • 2 Baths
  • 3 Parks

Property details

Cross Lease
155m² more or less
449m² more or less
3 Bedrooms
2 Bathrooms
1 Garage parking
Track home card illustration

Stay updated on this property!

Receive updates on value estimates and be the first to know if it goes on sale.

HomesEstimate

Updated: 16 Apr 2026

$1.4M - $1.56M

What is the HomesEstimate?

RentEstimate

Updated: 02 Apr 2026

$880 - $1,060 /week

Rental yield

3.4%

What is rental yield?

Sale history timeline

Local Schools

  • IN ZONE

    44 Surrey Crescent

    258 m

    Contributing (Primary), State, 253 enrolled


  • IN ZONE

    Moray Place

    1.3 km

    Intermediate (Intermediate), State, 402 enrolled


  • IN ZONE

    Motions Road

    1.4 km

    Secondary (Year 9-13) (Secondary), State, 1827 enrolled


While we've done our best to correctly list schools in this location, school zone information may not be exact, so please double check with the school.

Thinking of selling?Determine your property's value with an appraisal
We are upgrading some of our systems
Learn more