Skip to site navigation Skip to main content
main content
  1. Home
  2. Property
  3. Sold
  4. Auckland
  5. Grey Lynn
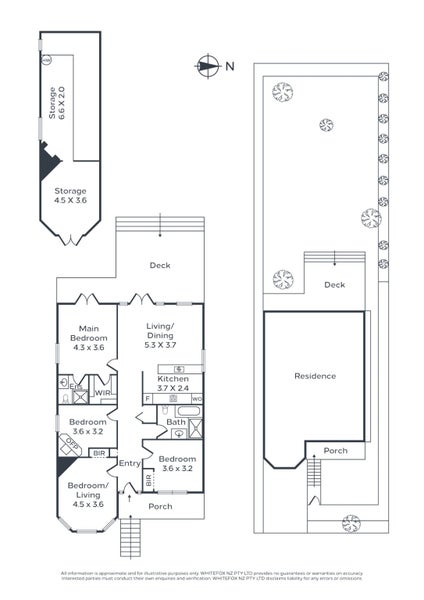
  6. 41 Hakanoa Street, Grey Lynn, Auckland
Sold on 14 Feb 2025

41 Hakanoa Street, Grey Lynn, Auckland

SOLD: $2,800,000
  • 3 Beds
  • 2 Baths
Track home card illustration

Stay updated on this property!

Receive updates on value estimates and be the first to know if it goes on sale.

HomesEstimate

Updated: 18 Sept 2025

$2.6M - $2.91M

What is the HomesEstimate?

RentEstimate

Updated: 02 Jul 2025

$1,100 - $1,330 /week

Rental yield

2.3%

What is rental yield?

Sale history timeline

Thinking of selling?Determine your property's value with an appraisal
We are upgrading some of our systems
Learn more