Skip to site navigation Skip to main content
main content
Estimate

21 Riddell Road, Glendowie, Auckland

HomesEstimate: $1.65M - $1.85M
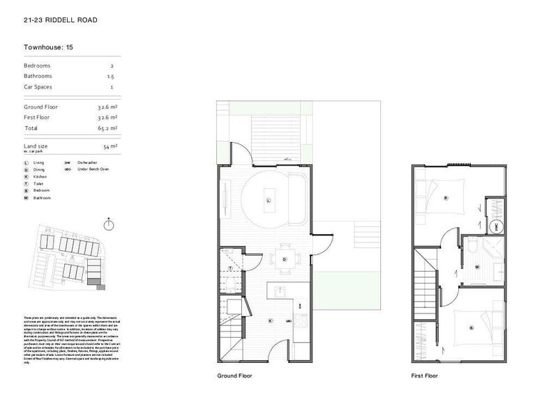
  • 2 Beds
  • 1 Bath
  • 1 Park

Property details

Freehold
203m² more or less
552m² more or less
2 Bedrooms
1 Bathroom
1 Garage parking
Track home card illustration

Stay updated on this property!

Receive updates on value estimates and be the first to know if it goes on sale.

HomesEstimate

Updated: 16 Apr 2026

$1.65M - $1.85M

What is the HomesEstimate?

RentEstimate

Updated: 02 Apr 2026

$950 - $1,150 /week

Rental yield

3.1%

What is rental yield?

Sale history timeline

Local Schools

  • IN ZONE

    126 St Heliers Bay Road

    283 m

    Full Primary (Primary & Intermediate), State, 593 enrolled


  • IN ZONE

    21 Crossfield Road

    643 m

    Secondary (Year 9-13) (Secondary), State, 1209 enrolled


  • IN ZONE

    72 Speight Road

    1.3 km

    Contributing (Primary), State : Integrated, 209 enrolled


While we've done our best to correctly list schools in this location, school zone information may not be exact, so please double check with the school.

Thinking of selling?Determine your property's value with an appraisal
We are upgrading some of our systems
Learn more